Самая дорогая квартира в Нижнем Новгороде стоит 120 млн рублей

Панорамные окна, терраса и кабинет

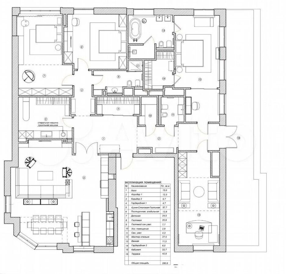
Речь идет о четырехкомнатной квартире, расположенной на 6-м этаже 7-этажного кирпичного дома 2016 года постройки. Из общей площади 280 квадратных метров, 238 квадратов занимает квартира и еще 42 квадрата приходится на террасу с панорамным видом на Кремль и Волгу.

Внутреннее пространство организовано в формате современной кухни-гостиной (57,7 квадратных метров), трех отдельных спален, кабинета, двух гардеробных, трех санузлов, прачечной и хозпомещения. Потолки в квартире высокие, комнаты изолированы. Окна выходят на три стороны, одна из которых — солнечная.

В квартире выполнен дизайнерский ремонт, установлена мебель: кухня, системы хранения, спальные места. В наличии вся бытовая техника — от кондиционера до посудомоечной машины и водонагревателя.

Что входит в стоимость

Помимо самого жилья, в цену включено также и парковочное место в подземном паркинге и кладовая. Дом оборудован двумя лифтами (грузовой и пассажирский), доступ в подъезд и во двор — по закрытой системе. Одна квартира — на этаже, есть собственная кнопка вызова лифта.

А вы сможете угадать, что это за место?

Территория огорожена, во дворе — детская площадка.

Квартира юридически чистая: один собственник, без обременений. Продажа свободная. Как указано в объявлении, причиной продажи стал переезд в другой город.

Информация на этой странице взята из источника: https://newsnn.ru/news/2025-08-02/s-vidom-na-kreml-skolko-stoit-i-kak-vyglyadit-samaya-dorogaya-nizhegorodskaya-kvartira-5448978