Комментарии 0
...комментариев пока нет
Старый темный дом превратили в современную стильную резиденцию в Бельгии
Проект House Bever, включающий реконструкцию старого дома в историческом городе Кортрейк, провинция Западная Фландрия, Бельгия, разработан архитектурной студией Luchtschip Architectuur и выполнен в 2019 году. Четырехуровневый дом на одну семью с двумя детьми площадью 210 квадратных метров состоит из двух основных этажей, подвала и мансарды. Перед архитекторами стояла задача создать комфортный семейный дом с просторными светлыми пространствами, ориентированными на получение выгодных ландшафтных видов, осуществляя, при этом, минимальное вмешательство в его историческую архитектуру.
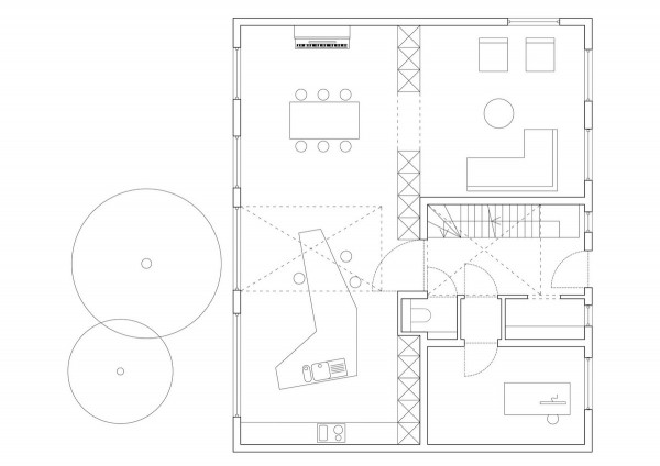
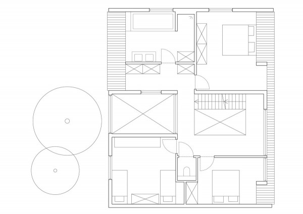
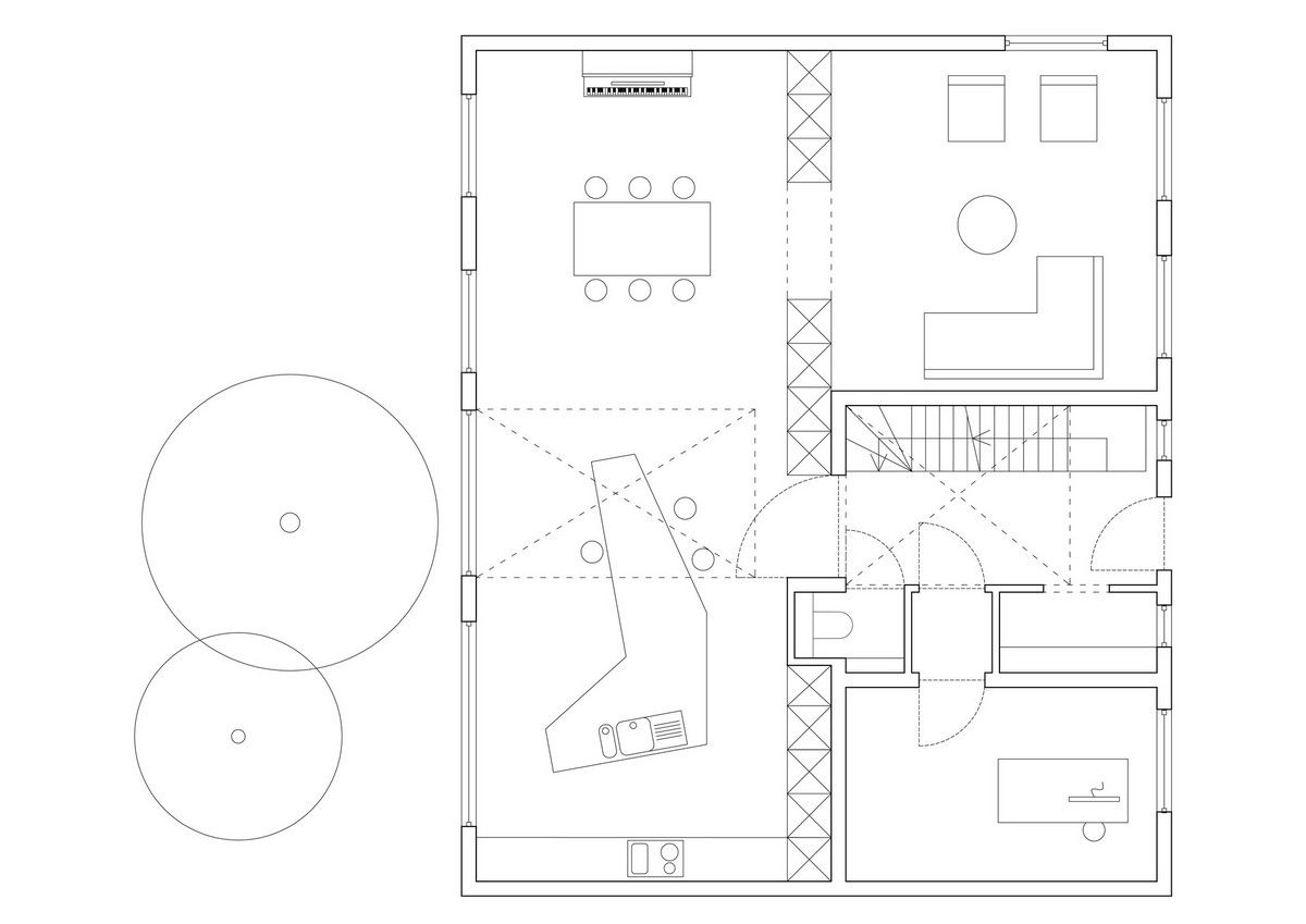
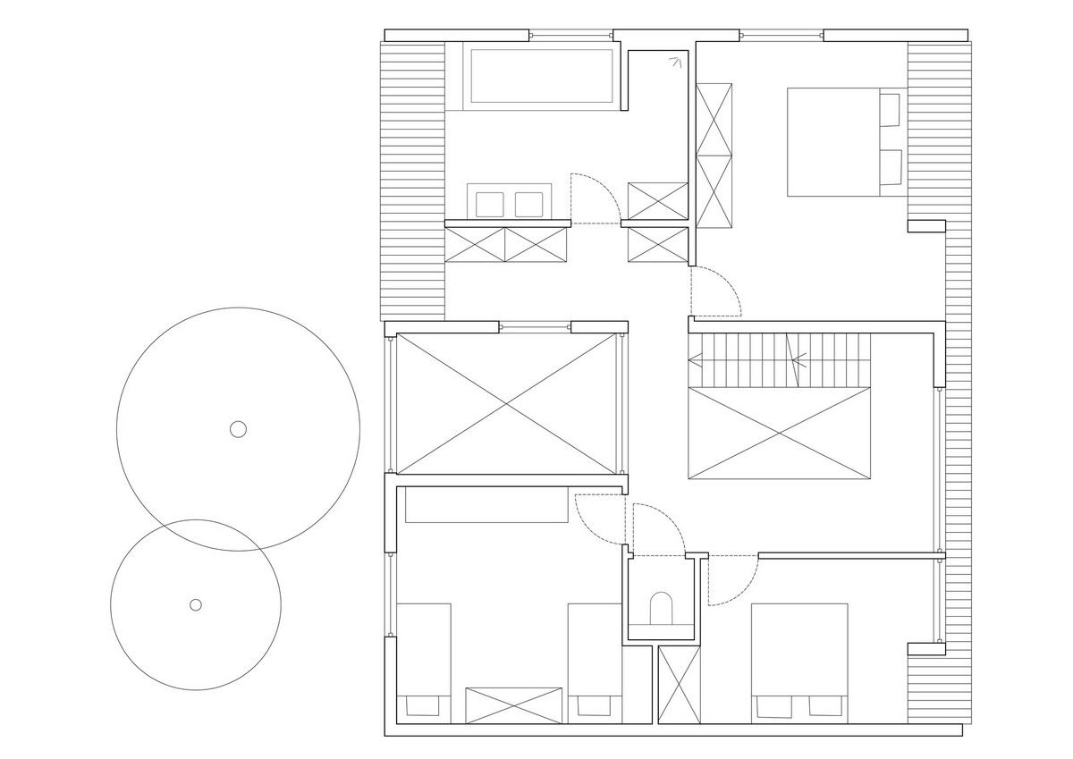
В результате реализации интересных дизайнерских решений старый темный дом превратился в современную стильную резиденцию с тщательно продуманной внутренней программой. Существующая узкая лестница была заменена на просторный вход с двумя лестницами из стали и со ступенями из беленого дуба, которые соединяют все уровни здания, от подвала до мансарды. Элегантные белоснежные перила и парапеты привносят в пространство ощущение чистоты и свежести. Благодаря большому внутреннему окну в центре дома, зеленый сад с высокими красивыми деревьями становится визуально присутствующим в интерьере, отчего его оформление становится особенно выразительным и динамичным. На переднем фасаде было добавлено мансардное окно, которое обеспечивает пространство дополнительным естественным светом.На первом этаже дома размещена социальная зона открытого плана - гостиная, столовая и кухня. Приоритетным пожеланием заказчика было создание кухни-столовой как сердца дома, в котором можно было бы проводить большую часть дня. Для создания большого и объемного пространства этой главной зоны над новой столовой был полностью убран верхний этаж. В результате пространство заняло две высоты с окном в пять метров, из которого открывается беспрепятственный вид в сад. Дизайн кухонного острова превратил его в основной предмет мебели, который стало возможным использовать не только для приготовления пищи, но и в качестве обеденной зоны. Он выполнен как монолитная скульптура с поверхностями из армированного волокном бетона с зеленым пигментом.Для изготовления мебели и камина использована светлая древесина дуба, которая создает атмосферу уюта и тепла. Пол залит бетоном терраццо. Цветовая палитра социальной зоны: белый, зеленый и серый, идеально сочетается с остальным интерьером дома. Второй этаж занимает приватная зона с тремя спальнями и ванной комнатой.
coolhouses.ru

В результате реализации интересных дизайнерских решений старый темный дом превратился в современную стильную резиденцию с тщательно продуманной внутренней программой. Существующая узкая лестница была заменена на просторный вход с двумя лестницами из стали и со ступенями из беленого дуба, которые соединяют все уровни здания, от подвала до мансарды. Элегантные белоснежные перила и парапеты привносят в пространство ощущение чистоты и свежести. Благодаря большому внутреннему окну в центре дома, зеленый сад с высокими красивыми деревьями становится визуально присутствующим в интерьере, отчего его оформление становится особенно выразительным и динамичным. На переднем фасаде было добавлено мансардное окно, которое обеспечивает пространство дополнительным естественным светом.На первом этаже дома размещена социальная зона открытого плана - гостиная, столовая и кухня. Приоритетным пожеланием заказчика было создание кухни-столовой как сердца дома, в котором можно было бы проводить большую часть дня. Для создания большого и объемного пространства этой главной зоны над новой столовой был полностью убран верхний этаж. В результате пространство заняло две высоты с окном в пять метров, из которого открывается беспрепятственный вид в сад. Дизайн кухонного острова превратил его в основной предмет мебели, который стало возможным использовать не только для приготовления пищи, но и в качестве обеденной зоны. Он выполнен как монолитная скульптура с поверхностями из армированного волокном бетона с зеленым пигментом.Для изготовления мебели и камина использована светлая древесина дуба, которая создает атмосферу уюта и тепла. Пол залит бетоном терраццо. Цветовая палитра социальной зоны: белый, зеленый и серый, идеально сочетается с остальным интерьером дома. Второй этаж занимает приватная зона с тремя спальнями и ванной комнатой.

















coolhouses.ru