«Трудовые резервы»: 7 важных фактов о реконструкции стадиона и развитии прилегающей территории

1. Кто?

Стадион сменил собственников в 2023 году. Фактически заново отстраивать спорткомплекс будет партнерство пермских инвесторов «НОВА & ПРОФОРМИКА» (NOVA & PROFORMICA). NOVA – пермская девелоперская группа, в портфеле которой много нестандартных проектов: Nova City на Беляева, 45, его интерпретация на Давыдова, 11, дом SPACE на Бульваре Гагарина, 67 и другие. «ПРОФОРМИКА» – это девелоперское подразделение инвестиционной группы, принадлежащей пермским предпринимателям Артему и Максиму Блиновыми. Под этим брендом они намерены развивать строительное направление не только в Перми. В портфолио компании – реконструкция и приспособление к современному использованию промышленных, коммерческих объектов, а также памятников архитектуры в разных регионах страны.

Партнерству «НОВА & ПРОФОРМИКА» также принадлежит заброшенный стадион «КАМА» в микрорайоне Владимирский. Здесь на Загарье «ПРОФОРМИКА» уже несколько лет за собственный счет расселяет аварийное жилье. Оба спортивных объекта инвесторы планируют восстановить, вернуть им статус якорных социальных объектов территории.

ФОТО: Панорама стадиона, Сад соловьев и прилегающая территория до строительства вышки на П.Лумумбы.

Максим Блинов, партнер группы «НОВА & ПРОФОРМИКА», соучредитель компании «ПРОФОРМИКА»:

«Глупо считать, что застраивать спортивный объект выгодно. Наоборот, его роль – стать точкой притяжения для жителей всего города. Он влияет на эмоциональную и физическую оценку всего вокруг, увеличивает проходимость, востребованность коммерческой инфраструктуры, место приобретает куда более высокий статус. Это необычный для Перми подход. И воспринимается у нас настороженно, скорее, по инерции».

2. Что?

В марте 2024 года Правительство Пермского края включило «Трудовое резервы» в зону КРТ «Городские горки». Ее площадь 9 га. Она ограничивает пространства вдоль улицы Макаренко со старым кинотеатром «Искра», заправкой и автомойкой, гаражи возле части Поваренного лога, пустыри возле стадиона. Непосредственно к зоне КРТ «Городские горки» примыкает только один жилой дом.

ФОТО: Зона КРТ "Городские горки"

Над проектами нового квартала и спорткомплекса «Трудовые резервы» работает одно из ведущих архитектурных бюро России – R1 (г. Екатеринбург).Свое имя специалисты заработали нестандартным подходом и высоким профессионализмом. Перед ними стоит задача создать уникальную инфраструктуру для жителей квартала в духе философии Well-being (концепции благополучия), когда сам комплекс становится источником физической, эмоциональной и социальной гармонии для его резидентов и прилегающей территории.

В зоне проектируется жилой комплекс с домами переменной этажности с подземным паркингом, новая городская и коммунальная инфраструктура, фактически новый спортивный объект городского значения. Площадь спорткомплекса увеличится с 1,4 до 1,65 га.

В квартале «Городских горок» запрограммировано строительство отдельно стоящего здания детского сада, а также помещения для женской консультации. Появятся помещения для кафе, магазинов, объектов прочей бытовой инфраструктуры.

Для организации трафика нового квартала специалисты краевого Центра дорожного движения разработали транспортную модель. Она призвана не только заранее просчитать возможные точки напряжения, но и, как оказалось, способна помочь разгрузить соседние магистрали. На кольце Макаренко – Тургенева – Уинская после открытия моста на Садовом специалисты Центра прогнозирует серьезное увеличение трафика. Решить проблему возможно в рамках КРТ Городских горок, за счет прокола в сквере Макаренко и установлении здесь светофорного объекта.

ФОТО: Расчет трафика. Часть перспективной транспортной модели движения на Городских горках от ЦБДД Пермского края

Мария Ахметова, партнер группы «НОВА & ПРОФОРМИКА», директор компании NOVA:

«Жилые дома не займут все «Городские горки». Объекты КРТ не присоединят к старым сетям, новые жители не поедут по существующим дорогам. Здесь будет создана совершенно новая коммунальная инфраструктура, обновлена значительная часть существующей. Появятся новые дороги, проезды и тротуары. Ул. Гайдара будет продлена от Патриса Лумумбы до Макаренко, на Макаренко и Уинской проектируются дополнительная полосы движения в сторону Садового. В квартале буде обустроено несколько пешеходных магистралей».

3. Когда?

Комплексное развитие – это проекты с горизонтом планирования 5-7-10 лет. Жилые дома не «вырастут» в микрорайоне завтра. Работы будут разбиты на этапы. Начало строительства первой очереди квартала вдоль улицы Макаренко начнется не ранее 2025 года. Работы на плоскостной части «Трудовых резервов» стартуют одновременно. Планируется, что первые жители в новые дома заедут в 2027 году.

4. Как?

Работа над проектом планировки квартала уже началась. Она тоже разбита на этапы. На первом готовятся к рассмотрению и обсуждению Документы планировки территории, которые приведут в порядок «лоскутное одеяло» участков в зоне КРТ, уточнят границы, в т.ч. функциональных зон. Участок под спорткомплексом перейдет в краевую собственность до начала строительства. Строить объект уже на краевой земле за собственный счет будет инвестор.

На плоскостной части будущего спорткомплекса начались проектно-изыскательские работы. Их цель сформировать геометрию спортобъекта и «посадить» его на участок, где он будет находиться. Они не повлияют на работу стадиона прямо сейчас. Как минимум ближайшие два сезона популярный каток будет доступен.

ФОТО: Рендер (эскизные изображения) нового спорткомплекса "Трудовые резервы": футбольное поле и Дом спорта. Беговой кластер предполагается вынести за пределы стадиона, и пустить по кромке Сада соловьев

Максим Блинов, партнер группы «НОВА & ПРОФОРМИКА», соучредитель компании «ПРОФОРМИКА»:

«На этом этапе проектирования на многие вопросы еще нет однозначного ответа. Например, о будущей плотности застройки. Сейчас все расчеты ведутся из максимально возможных по нормативам и ГОСТам для этой территории. Они необходимы для моделирования транспортной, антропогенной, коммунальной, экологической и социальной нагрузок. А также для синхронизации с планами города и края по развитию здесь объектов образования и медицины. На финальном этапе проект будет представлен общественности».

5. Зачем высотные акценты?

По мнению многих урбанистов и архитекторов, именно высотное строительство высвобождает бОльшую территорию в рамках КРТпод рекреацию и благоустройство, социальную инфраструктуру, позволяет сконцентрировать в одном месте необходимые услуги, снизить транспортную нагрузку. «Расползание» города вредно для экономики мегаполиса. Оно приводит к существенному увеличению затрат на коммуникации, логистику и транспорт, негативно влияет на перераспределение человеческих ресурсов, которые вынуждены будут перемещаться на значительные расстояния.

«Городские горки» – это неблагоустроенный участок вблизи центра Перми. Он выключен из жизни города. Одновременно он находится вне охранных зон объектов культурного наследия, что по закону позволяет вести здесь строительство высотных зданий. Это не только желание застройщика и экономика проекта, это современный градостроительный тренд. Это объективная реальность в условиях, с одной стороны, нехватки земельных участков в городе, а с другой – требование в рамках политики «компактного города», закрепленной в актуализированном генплане Перми. ФОТО современного состояния объекта

Предпроект квартала на Городских горках исходит из концепции нескольких высотных акцентов до 32 этажей. Задача проектировщиков не вписать их в территорию, а за их счет сделать этот квартал современным, визуально привлекательным.

6. Почему смещается стадион?

История «Трудовых резервов» насчитывает 50 лет. Они строились по типовому проекту, с задержками и нарушениями. Конфигурация города, задачи, которые решались в то время, значительно отличаются от вызовов ХХI века. Как и требования к наполнению спорткомплекса. По оценке экспертов, восстанавливать существующий Дом спорта не имеет смысла. Строительные нормы советского времени существенно отличаются от сегодняшних. Косметического ремонта недостаточно. Объект не пройдет лицензирование по многим параметрам: от пожарной безопасности до ширины дверных проемов. Чтобы соответствовать современным требованиям здание придется серьезно конструктивно перестраивать. «Трудовые резервы» – это не придомовая площадка, а спортивный объект городского значения. Этот статус диктует особые условия к транспортной доступности.

Проектирование новых «Трудовых резервов» продолжается. Комплекс увеличится в размерах, будет включать стадион и Дом спорта. Перед проектировщиками стоит задача: не пытаться вместить сюда все возможные спортивные функции. Необходимо удовлетворить отраслевой запрос: вернуть на объект дзюдо и бокс. Сделать стадион доступным для разных видов спорта летом. Сохранить каток зимой. В помещении кроме залов для единоборств с раздевалками появится тренажерный зал, зона для обслуживания катка и прокат. Летом ее предполагается использовать для нужд поля и бегового кластера. В Доме спорта проектируется кафе, где смогут отдохнуть и спортсмены, и родители, ожидающие детей с тренировок.

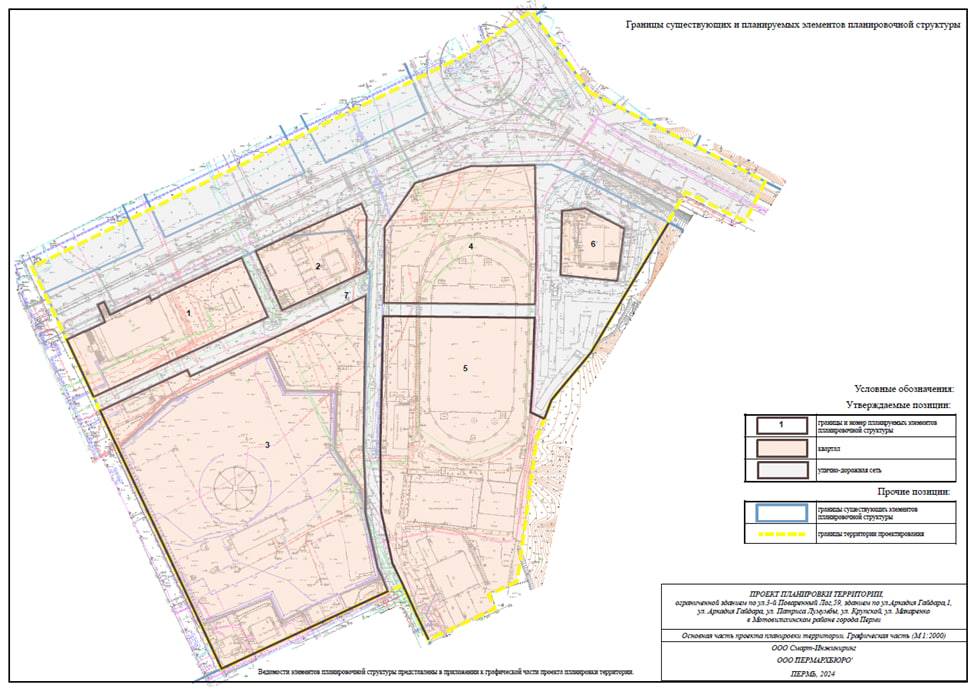
ФОТО: Чертеж планировки территории, Красные линии - из Документов планировки и межевания территории зоны КРТ "Городские горки" , 1 этап развития проекта, направленный на уточнение границ участков внутри зоны КРТ.

Мария Ахметова, партнер группы «НОВА & ПРОФОРМИКА», директор компании NOVA:

«Смещение спорткомплекса – это продуманное проектное решение. Удобный подъезд, парковка необходимы для общегородского стадиона. Он будет выведен на внешний контур, чтобы не увеличивать транспортную нагрузку на жилые дома всего микрорайона. Кроме того, смещение позволит начать работы на спортивном объекте на первом этапе освоения квартала. Опыт эксплуатации подобных объектов в Перми, например стадионов «Динамо», «Юность», «Прикамье», а также исследования специалистов-экологов показывают, смещение спорткомплекса ближе к дорожной развязке практически не влияет на экологическую обстановку на объекте».

7. Деньги.

Превратить участок на «Городских горках» в сплошную зону рекреации невозможно. Нецелесообразно с точки зрения развития Перми. Комплексное развитие – это сложный урбанистический инвестиционный проект. Его стоимость – миллиарды рублей. Это баланс возможностей и желания, позволяющий вернуть городской спортобъект к жизни уже в обозримом будущем. К сожалению, не в угоду тем, кто надеется сохранить здесь привычный уклад. Но в интересах куда большего числа горожан.

Павильон-раздевалка. Зимой в здании работает раздевалка для катка и прокат
Павильон-раздевалка. Зимой в здании работает раздевалка для катка и прокат
Павильон-раздевалка. Зимой в здании работает раздевалка для катка и прокат
Павильон-раздевалка. Зимой в здании работает раздевалка для катка и прокат
Дом спорта «Трудовые резервы», весна 2024 г.
Дом спорта «Трудовые резервы», весна 2024 г.
Дом спорта «Трудовые резервы», весна 2024 г.
Дом спорта «Трудовые резервы», весна 2024 г.
Дом спорта «Трудовые резервы», весна 2024 г.
Дом спорта «Трудовые резервы», весна 2024 г.
Дом спорта «Трудовые резервы», весна 2024 г.
Дом спорта «Трудовые резервы», весна 2024 г.
Дом спорта «Трудовые резервы», весна 2024 г.
Дом спорта «Трудовые резервы», весна 2024 г.
Футбольное поле стадиона «Трудовые резервы», лето 2024 г.
Футбольное поле стадиона «Трудовые резервы», лето 2024 г.
Дом спорта «Трудовые резервы», весна 2024 г.
Дом спорта «Трудовые резервы», весна 2024 г.
Дом спорта «Трудовые резервы», весна 2024 г.
Дом спорта «Трудовые резервы», весна 2024 г.
Документы планировки и межевания территории зоны КРТ «Городские горки» – 1 этап развития проекта, направленный на уточнение границ участков внутри зоны КРТ
Документы планировки и межевания территории зоны КРТ «Городские горки» – 1 этап развития проекта, направленный на уточнение границ участков внутри зоны КРТ
Документы планировки и межевания территории зоны КРТ «Городские горки» – 1 этап развития проекта, направленный на уточнение границ участков внутри зоны КРТ
Документы планировки и межевания территории зоны КРТ «Городские горки» – 1 этап развития проекта, направленный на уточнение границ участков внутри зоны КРТ
Сценарий текущего и перспективного использования территории спорткомплекса
Сценарий текущего и перспективного использования территории спорткомплекса
Спорткомплекс "Трудовые резервы», наши дни
Спорткомплекс