Возле парка Лесоводов в Уфе снесут дома и построят новую многоэтажку
Мэр Уфы Ратмир Мавлиев в понедельник, 9 декабря, утвердил проект планировки и проект межевания территории в Зеленой Роще. Речь о квартале рядом с парком Лесоводов – участке, ограниченном улицами Сагита Агиша, Степана Злобина, Минигали Губайдуллина, Гали Ибрагимова и проектируемыми улицами в Советском районе. Документ был опубликован на сайте мэрии.
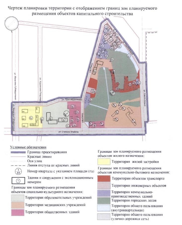
На данном участке есть в том числе Республиканский клинический противотуберкулезный диспансер, объекты «Башавтотранса», строящиеся снегоплавильный пункт и административно-торговое здание, автоцентр. Их строители не тронут, как и 7,48 га городских лесов. Однако на участке снесут разрушенные дома, гаражи, административные здания, хозяйственные постройки.
Всего будет четыре очереди строительства. В первую закончат два строящихся здания, во вторую построят жилой комплекс (здания от 7 до 23 этажей) и школу на 1650 детей, в третью очередь – детский сад на 250 мест и поликлинику на 900 посещений. Добавим также, что проект предусматривает строительство ТП, котельной и очистных сооружений ливневой канализации, которые будут строиться в эти четыре очереди.
На чертежах можно увидеть, какие здания построят конкретно. Так, многоэтажный комплекс выделен желтым цветом и пронумерован цифрой «24».



Чертежи из проекта планировки и проекта межевания территории
- На сегодняшней оперативке правительства РБ глава республики Радий Хабиров отдал парк Лесоводов городу, чтобы тот продолжил развивать объект. Кроме того, стало известно, что там откроется зоопарк.