Небоскребы вместо школы: сургутян зовут обсудить очередной проект застройки
Жилья мало не бывает
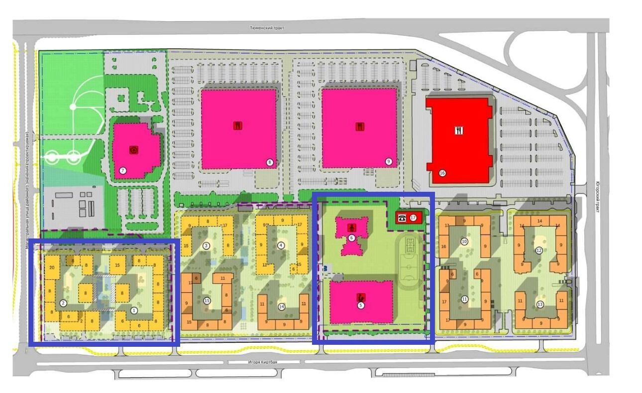
Мэрия Сургута назначила публичные слушания «по внесению изменений в проект планировки и проект межевания территории „Застройка микрорайона № 35 в городе Сургуте. Корректировка“. Речь идет об участке в конце улицы Игоря Киртбая.

«Новым проектом планировки застройщик хочет предусмотреть появление дополнительных двух жилых комплексов с башнями на 20 и 16 этажей в микрорайоне», — отметил депутат думы Сургута Алексей Кучин.

Публичные слушания назначены на 26 июня, 18:00 и пройдут в зале заседаний думы города, расположенном по адресу: улица Восход, дом 4.
Школа превращается … в элегантные высотки
В будущем обсуждении важен не только факт застройки и согласование жителями проекта, но и предыстория вопроса. В этом же 35 м микрорайоне должны были появиться школа и детский сад, которых в связи с бурным развитием территории очень ждали жители.
Изначально земля под образовательные учреждения была передана застройщику, и он обещал возвести на этом месте социальные объекты. Однако уже в 2022 году стало известно, что девелопер хочет «выданную» землю вернуть, а школу и детсад, соответственно, строить не хочет.
При этом возвращение территорий предполагалось возмездным: мэрия получала обратно участок без школы, а застройщик — новый кусок земли. Такие планы озвучивал депутатам экс-директор департамента архитектуры и градостроительства администрации Сургута Александр Коновалов.
На том момент застройщику предполагали вручить для освоения территорию в районе Черного мыса. Депутаты несколько опешили от такой постановки вопроса. Так, Богдан Гужва отмечал, что для Сургута это «невиданная практика», когда застройщик не строит объект и одновременно не просто возвращает землю, а пытается на ней «заработать».
Возможно, именно эта позиция народных избранников вынудила чиновников пойти разговаривать с застройщиком дальше. В 2023 году СМИ писали, что девелопер все же запроектирует школу и даже построит в рамках концессионного механизма. В следующем году о строительстве уже речи не шло: говорили только о проектировании соцобъектов, и перспектива мены уже как будто оказалась делом решенным.
В администрации вели работу по оценке рыночной стоимости участка и подбирали территорию, которую отдадут застройщику взамен участка с так и непостроенной школой.
«В 2024 году была произведена мена, застройщику был передан этот участок, взамен компания передала городу участок, который им выделялся под строительство школы и садика в 35 микрорайоне. В конце 2024го года в новом Генеральном плане назначение участка было изменено на жилищное строительство», — подытожил витиеватую историю депутат гордумы Алексей Кучин.
Чего хотят жители?
Некоторое время назад мы уже разбирались в школьных перспективах города. Вопрос наболевший и, в том числе, в микрорайоне 35:
«Очень ждем школу на Игоря Киртбая в 35 микрорайоне для детей 37, 35, 35А, 51, 5А (северо-западной части) микрорайонов Сургута».
«Прошу пояснить, как так получается, что МКД строятся как горячие пирожки, а школы нет? Яркий пример: школа в 5А микрорайоне, которую больше 20 лет строят. В 35 мкрн люди столько школу будут ждать? Уже порядка 15 (!) МКД там построено или находятся в строительстве. „Отписки“ вызывают больше негатива, чем бездействие».
Как нам сообщали в администрации, школа в этом районе по программе «Строительство» должна появится до 2030 года.
«Я не понимаю, почему социальные объекты не в приоритете при начале застройки? Их нужно строить в первую очередь, а потом уже приступать к жилью. Мы на проспекте Мира ждем школу уже 20 лет. Власти меняются, обещания остаются, а изменений нет. Все переносится, кроме жилых застроек», — отметила в разговоре с Muksun.fm общественница Инна Бирук.
Отметим, что вопрос строительства жилья, кажется, плотно ворвался в сургутскую повестку (несмотря на кризис у девелоперов). Обсуждаются проекты КРТ в ядре центра города и возле ЖК «Возрождения». Также есть планы по возведению домов вместо заброшенного коттеджного поселка на окраине Сургута.